
Top Reasons to Buy
Villa for sale in Alanya, Turkey is located in Tepe, an established villa region positioned on the hills directly above the city center. Tepe’s hillside position gives direct views of the Mediterranean and Alanya Castle while remaining close to the city’s main facilities, such as healthcare, schools, supermarkets, and daily services. It has become a preferred choice among foreign property buyers seeking a permanent living environment with a quiet residential character rather than a tourist-driven setting. Detached villas dominate the landscape here, which ensures privacy, space, and a consistent neighborhood standard. Tepe is also favored by international families who relocate year-round, as the region offers proximity to the center without being in congested zones.
The villa is positioned in a low-density part of Tepe, surrounded by newly built private homes and landscaped plots. The elevated setting secures sea, castle, and mountain views, as the zoning and elevation of this part of the area prevent future construction from blocking sightlines.
Distances to key points of the area:
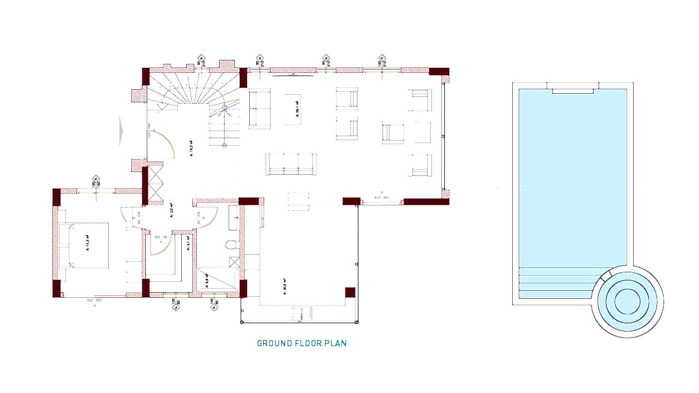
The development occupies 1,169 m² of land and consists of two private two-story villas, with each house having a 584 m² plot. This sea view villa in Alanya, Tepe features a private heated swimming pool, a garden, and an enclosed garage for two cars. A smart home system manages lighting, climate control, and pool functions. Underfloor heating is installed throughout, and the infrastructure includes central cooling and heating, fire and motion sensors, an electric shutter system, voltage regulation, and a camera setup.
This villa for sale in Tepe, Alanya, Turkey is suitable for obtaining Turkish citizenship. The interiors include furniture, white goods, air conditioners, a steel security door, double-glazed windows with roller shutters, a fitted kitchen with a marble worktop, bathrooms with marble tiles, furniture and shower cabins, marble flooring, built-in spotlights, and many more.
TERRA Real Estate® is an authorized real estate agency operating since 2004 and holds the Authorisation Certificate for Real Estate Trading, issued and approved by the Turkish Ministry of Trade.

Licenced Real Estate Agent
Similar properties